JIS 22kg rails are mainly used for ground rails in factories, mine tunnels.
As a professional rail supplier in China, Kingrail Parts can supply high-quality and competitively priced jis 22kg rails.
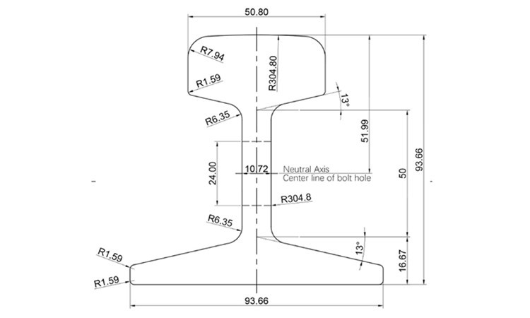
Specifications
Size: 22 kg/m
Material: Q235B
Standard: JIS E1103-91/JISE 1101-93
Length: 5-12m or other lengths as required by customers
|
Standard |
JIS E1103-93/ JISE1101-93 |
||||||
|
Model |
DIMENSION |
Weight |
Material |
Length |
|||
|
A(mm) |
B(mm) |
C(mm) |
t(mm) |
(KG/M) |
(m/PC) |
||
|
JIS 22KG |
50.8 |
93.66 |
93.66 |
10.72 |
22.3 |
55Q |
9-10 |
Drawings
Get more help
Please contact us for more information and quotes.

Inquiry Now