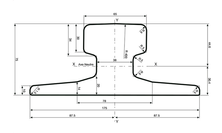
Kingrail Parts' crane rail A65 is manufactured to European standard DIN 536 P1:1991 and has a mass of 43,10kg/m.
Crane rail A65 is commonly used for crane rails, mining rails and many other applications.
Specifications
Material: 700/900A/1100
Weight: 43.1kg/m
Length: 10-12m
Standard: DIN536-1-1991
|
Type |
Dimension (mm) |
Weight (kg/m) |
Material |
Length (m) |
|||
|
Head |
Height |
Bottom |
Web |
||||
|
A65 |
65 |
75 |
175 |
38 |
43.1 |
900A |
6-12 |
Drawing
Contact us
Please contact us for more information and a quote.

Inquiry Now