18KG rail is a light rail. It is mainly used for laying temporary transport lines and light rail lines in forest areas, mines, factories and construction sites.
Kingrail Parts can provide you with a variety of rails, including light rails such as 18KG rails, heavy rails, crane rails, etc. with different standards and specifications.
Specifications
Material: Q235/55Q
Weight: 18.06KG/M
Length: 6-12m
Standard: YB222-63
Specifications
|
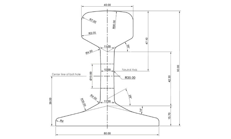
18kg Rail Parameters |
|||
|
Rail Type |
Weight(Kg/m) |
Material |
Length(m) |
|
18kg |
18.06 |
Q235/55Q |
6-12 |
|
Head Width(mm) |
Bottom Width(mm) |
Rail Height(mm) |
Web Thickness |
|
40 |
80 |
90 |
10 |
Drawings
Get more help
If you need rails, please contact us. We will provide you with the best solution.

Inquiry Now