BS90A rails are mainly used for mine tunnels, factory workshop transportation, lifting equipment transportation and the laying of railway dedicated lines.
Kingrail Parts can supply BS60A rails, BS70A rails, BS75A rails, BS80A rails, BS90A rails, etc.
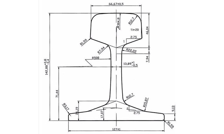
Specifications
|
Product Name |
BS90A rail |
||||||
|
Standard |
BS11:1985 |
||||||
|
Model |
DIMENSION |
Weight |
Material |
Length |
|||
|
A(mm) |
B(mm) |
C(mm) |
t(mm) |
(KG/M) |
(m/PC) |
||
|
BS90A rail |
66.67 |
142.88 |
127 |
13.89 |
45.099 |
900A |
8-25 |
Drawings
Get more services
Please contact us for more information and quotes.

Inquiry Now