BS90A rails are used for subway lines or mine railway lines, most of the UK countries and European countries use this type of rails, the UK standard is BS11-1985, the European standard is EN13674-4, the type name is EN 45E1, they are the same type of rails.
Kingrail Parts can supply a variety of rails, including light rails, BS standard rails, such as BS90A rails, heavy rails, crane rails, etc., with different standards and specifications.
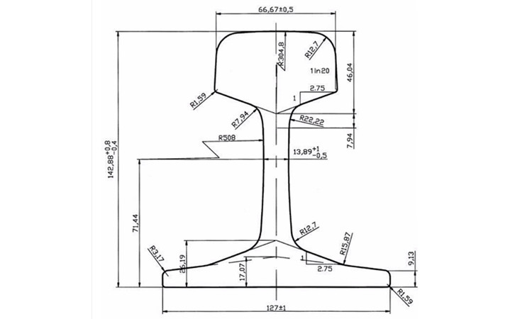
Specifications
| type | weight (kg/m) | material | length (m) |
| BS90A | 45.1 | 900A | 12m/12.5m |
| rail height (mm) | bottom width (mm) | head width (mm) | web thickness (mm) |
| 142.88 | 127 | 66.67 | 13.89 |
Drawings
Get more services
Please contact us for more information and quotes.

Inquiry Now