JIS 37kg JIS 37A rails are mostly used for transportation in larger mine tunnels and factory workshops, lifting equipment, and laying of dedicated railway lines.
Kingrail Parts can supply a variety of rails, including light rails, JIS standard rails, such as JIS 37kg JIS 37A rails, JIS50N rails, heavy rails, crane rails and other rails of different standards and specifications.
Specifications
Specifications: 30kg/m
Material: Q235B, 55Q
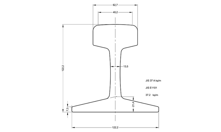
Standard: JIS E1103-91/JISE 1101-93
Length: 5-12m or other lengths as required by customers
|
Size |
Specification (mm) |
Weight(kg/m) |
Steel Grade |
Length (m) |
|||
|
Height |
Base |
Head |
Web |
||||
|
37A |
122.24 |
122.24 |
62.71 |
13.49 |
37.2 |
U71Mn |
6-12 |
Drawings
Get more help
If you need rails, please contact us. We will provide you with the best solution.

Inquiry Now